Графический раздел
Основные составляющие данного раздела:
- принципиальная схема автоматического ввода резерва (обязательна для потребителей 1-й категории);
Пример схемы подключения к основному, дополнительному и резервному источнику электроснабжения - схема внешней системы освещения, включая транспортные коммуникации (обязательна для производственных объектов);
- схема системы аварийного освещения;
- схемы реализации молниезащиты и заземления;
Молниезащита и заземление в рамках проекта ЭОМ - схема внутренней системы освещения;
- схема системы силового оборудования (в жилых домах, как правило, объединена с системой освещения).
Для некоторых объектов, например производственных, может понадобиться схема с указанием мест монтажа электрооборудования.
Требования к проекту и его структуре
Состав проектно-сметной документации и требования к этим документам регламентируются Градостроительным кодексом РФ
Состав проектно-сметной документации и требования к этим документам регламентируются Градостроительным кодексом РФ. Там же оговаривается, что требования, состав и порядок согласования проекта устанавливаются правительством нашей страны.
Состав разделов проектной документации определён постановлением Правительства РФ номер 87, которое было принято 16.02.08 г. Там говорится, что разработка проекта обязательно выполняется при возведении следующих типов строительных объектов:
- для капитальных строительных объектов производственного назначения;
- для зданий и сооружений непроизводственного назначения;
- для линейных объектов.
Для успешного согласования проектной документации состав должен чётко соответствовать законодательно установленным нормам.
Состав проекта
Как постановило Правительство РФ, правильно составленный проект должен включать в себя двенадцать разделов, начиная с пояснительной записки
Как постановило Правительство РФ, правильно составленный проект должен включать в себя двенадцать разделов. Также отдельно оговаривает состав разделов проектной документации. Так, в проекте должны быть:
- Пояснительная записка.
- Генеральный план. В этот раздел входят градостроительные решения и схема планировки земельного участка с расположением и привязкой проектируемого объекта и обязательным указанием окружающей застройки.
- Раздел, содержащий в себе весь перечень архитектурных решений (планировка, фасады, разрезы).
- Объёмно-планировочные решения относительно будущей постройки и конструктивные решения.
- Технологические решения с пояснительной запиской.
- Сведения об инженерной инфраструктуре, технических мероприятиях, сетях обеспечения.
- Проект организации строительного производства.
- Если в ходе строительства предполагается произвести снос капитальных строительных объектов, то это должно быть подробно отражено в отдельном разделе.
- Раздел, связанный с мероприятиями по охране окружающей среды.
- Отдельный раздел делается и для описания мероприятий, которые предпринимаются для облегчения доступа в строение маломобильных групп населения.
- На мероприятия, направленные на повышение энергоэффективности строительного объекта, отводится также целый раздел.
- Сметный расчёт.
- Пакет используемых документов и литературы.
Стоит добавить, что некоторые разделы содержат определённые подразделы. Например, раздел об инженерной инфраструктуре содержит в себе подразделы о сетях электроснабжения, водоснабжении и канализации, отоплении и вентиляции, газоснабжении, кондиционировании и связи.
Если в составе проекта должны присутствовать другие разделы, которые не включены в список обязательных разделов, утверждённых законодательно, то перечень этих пунктов оговаривает в договоре между заказчиком и исполнителем проекта.
Структура проекта
В составе любого проекта должны быть графические и текстовые материалы, которые будут давать полную информацию о строящемся объекте
В составе любого проекта должны быть графические и текстовые материалы, которые будут давать полную информацию о строящемся объекте. В частности текстовые материалы должны содержать:
- полные сведения о строительном объекте;
- описывать различные архитектурные, строительные и технические решения;
- давать пояснения и ссылки на нормативные документы, сортаменты строительных материалов и иные источники, которые задействуются в ходе разработки проекта;
- все решения, которые были приняты в проекте, должны обосновываться расчётами.
Что касается графических материалов, то в них все принятые решения должны отображаться наглядно. Для этого можно использовать:
- различные графические схемы;
- чертежи;
- таблицы;
- фото фиксации;
- наглядные демонстрации объекта строительства (трёхмерное изображение, фасады или макет).
Зачем нужна ЕСКД?

Если на секунду представить, что каждый конструктор или инженер будет разрабатывать проект или выполнять чертеж по-своему усмотрению, не соблюдая каких-либо требований и правил, то становится понятно, что такие работы не примет ни одно уважающее себя и своих клиентов предприятие. Подобные проекты будет трудно реализовать, а чертежи и вовсе никто не поймет. Чтобы такого не случилось, и требуется ЕСКД. Только ЕСКД позволяет предприятию воплотить проект в жизнь, а рабочим понять то, что изображено на чертеже. Именно ЕСКД – это то, что помогает предприятиям производить качественный продукт, который сможет долго прослужить владельцу, будь то автомобиль или новый станок.
Дпт земельного участка это
Содержание Детальный план территории (ДПТ) составляется в крупном масштабе и определяет планировочную организацию и/или особенности застройки территории. Он может создаваться на территории, где будет осуществляться новое строительство, реконструкция, а также на территории прибрежных защитных полос, территории парков, коттеджных городков, на районы промышленного строительства.
Новшеством, Закона «О регулировании градостроительной деятельности» является то, что в составе детального плана территории разрабатывается проект землеустройства относительно упорядочения территории для градостроительных нужд. Детальный план территории определяет: — принципы планировочно-пространственной организации застройки; — красные линии» и линии регулирования застройки; — функциональное назначение, режим и параметры застройки одной или нескольких земельных участков, распределение территорий согласно строительным нормам, государственным стандартам и правилам; — уточнение градостроительных условий и ограничений согласно плану зонирования территории; — потребность в предприятиях и учреждениях обслуживания населения, место их расположения; — целесообразность, объемы, последовательность реконструкции застройки; — очередность и объемы инженерной подготовки территории; — систему инженерных сетей; — порядок организации транспортного и пешеходного движения; — порядок комплексного благоустройства и озеленение.
Детальный план территории состоит из текстовых материалов и обоснований, а также из графических приложений. Графические приложения к ДПТ составляются в масштабе 1 : 500 – 1 : 2 000. Утвержденный детальный план является основой определения исходных данных для: 1) разработки проектов застройки территорий микрорайонов, кварталов, комплексов застройки отдельных земельных участков; 2) проектирования домов, общественных зданий, гостиничных и рекреационных комплексов, сооружений другого назначения; 3) проектирования сетей и сооружений инженерно-транспортной инфраструктуры и инженерного обеспечения территории;
О составе проектной и рабочей документации
О составе проектной документации
Исходя из статьи 48 Градостроительного кодекса России, под проектной документацией понимается набор документов, содержащий тексты, схемы и карты.
Постановление Правительства РФ №87 и принятый ГОСТ Р 21.1101-2013 «Национальный стандарт Российской Федерации. Система проектной документации для строительства. Основные требования к проектной и рабочей документации» определяют следующий состав проектной документации:
Текстовые и графические материалы, включаемые в том, в общем случае комплектуют в следующем порядке:
-
обложка;
-
титульный лист;
-
содержание тома;
-
ведомость «Состав проектной документации»;
-
текстовая часть;
- графическая часть (чертежи и схемы).
О составе рабочей документации
Рабочая документация, исходя из Постановления Правительства РФ № 87 от 16 февраля 2008 года, — это пакет документов, разрабатываемый для того, чтобы было возможно внедрить и соблюсти решения, отраженные в проектной документации в процессе строительства. Ее содержание и состав определяется в большей степени потребностями заказчика, исходя из того уровня детализации составных частей проектной документации, который ему и монтирующим организациям нужен и указывается в проектировочном задании.
ГОСТ Р 21.1101-2013, пункт 4.2.1. определяет состав рабочей документации так: рабочие чертежи и прилагаемые документы, разработанные в дополнение к рабочим чертежам основного комплекта.
По нашему мнению, в общем случае, для данного этапа работ над проектом, проектная документация, должна быть дополнена:
-
деталировками узлов;
-
чертежами нетиповых изделий;
- спецификацией на оборудование и материалы.
Откуда взялись эти понятия «проектная документация» и «рабочая документация»?
Понятия «проектная документация» и «рабочая документация» содержатся в нормативных и регламентирующих документах, которые определяют, в том числе, и объем, содержание проектной документации.
А что еще такое «проект» и «рабочий проект», стадия «П» и стадия «Р»?
Среди проектировщиков «проектную документацию» называют просто проектом, а «рабочую документацию» — рабочим проектом или «рабочкой».
Также специалисты называют «проектную документацию» проектом стадии «П», а «рабочую документацию» или рабочий проект — проектом стадии «Р».
Иногда говорят «проект Р-стадии», «проект П-стадии», «проект стадии РД» и так далее. Все эти словосочетания и определения детализации проектной работы имеют общие корни с Проектной и Рабочей документацией.
Стадии «П» (проектная) и «Р» (рабочая) — это обозначения проектов в документации по ГОСТ, принятые на чертежах.
На чертежах проекта в графе «Стадия» указывается «П» или «Р»
То есть, получается, что это слова-синонимы, которые обозначают одно и то же:
- Проектная документация, проект, стадия «П»?
-
Рабочая документация, рабочий проект, стадия «Р»?
Да, у нас на сайте в услугах проектирования инженерных систем принято так:
- Проектная документация = проект = стадия «П» = проект стадии «П» = ПД и так далее и тому подобное
- Рабочая документация = рабочий проект = стадия «Р» = проект стадии «Р» = РД и так далее и тому подобное
А можно узнать подробнее о деталях разработки рабочей документации или рабочего проекта, то есть проекта стадии «Р» по инженерным системам?
На нашем сайте представлена подробная информация об услугах проектирования и разработке рабочего проекта инженерных систем.
Если есть еще вопросы, то звоните +7 (495) 739-37-79.
Наиболее интересные новые вопросы и ответы на них будут публиковаться на этой странице ниже.
Ошибки в составлении смет
Существенное завышение или уменьшение сметной стоимости объекта — это признак некачественно выполненной рабочей документации. Многие проектные организации умышленно занижают сметную стоимость, не включая в смету определенные виды работ или уменьшая их объемы. Это делается с целью выиграть тендер. В результате заказчик, рано или поздно, но сталкивается с увеличением стоимости строительства.
При возведении индивидуальных жилых домов, когда компания сама и проектирует здание, и осуществляет его строительство «под ключ», часто имеет место завышение сметной стоимости путем необоснованных увеличений объемов работ, особенно дорогостоящих или вписывания в смету работ, не предусмотренных технологией.
К другим нарушениям, выявляемым в процессе экспертизы смет, относятся ошибки в применении:
Рабочий проект интерьера офиса Управляющей компании ЖК D1
РП интерьеров квартиры в новостройке
Рабочий проект квартиры в новом доме
- sevak-world.web-box.ru/construction/designing
- dic.academic.ru/dic.nsf/ruwiki/1609069
- Пример состава проекта интерьеров дома, стадии РД (рабочая документация)
Московское архитектурное бюро Глушкова разрабатывает рабочую документацию европейского уровня по отечественным ценам!
Комментарии: (1)
- Пример состава проекта интерьеров дома, стадии РД (рабочая документация)
- 3Д рендер проекта интерьера спальни, бюро Дмитрия Глушкова
- Рендеры проекта интерьера ванной комнаты в загородном доме, бюро Дмитрия Глушкова
- Пример проекта спальни в коттедже (посёлок Променад)
Проекты АКБ Глушкова:
| Разработка концепции коттеджного поселка — Дмитрий Глушков | Генеральный план Курортного комплекса расположенного на полуострове Крым вблизи г. Евпатория | Проектирование офисных зданий в Москве и Московской области |
| Проектирование развлекательных центров — архитектурное бюро Глушкова, Москва | Коттеджный поселок «Пестово», архитектурное бюро Глушкова (реализованный проект) | Отзывы об архитектурно-дизайнерском бюро Глушкова |
Состав и наполнение текстовой документации раздела ЭОМ
Согласно действующим нормам, данный подраздел включает в себя следующие основные документы:
описание и характеристики внешних электросетей, с которыми будет коммутироваться объект строительства, согласно Техническим условиям (далее ТУ). В записке указывается: номер, присвоенный ТУ, название организации, выдавшей документ, дата выписки, категория надежности, точка подключения;
Технические показатели приводятся в виде таблицы, ее пример показан ниже:
| № | Наименование | Ед. Изм. | Величина |
| 1 | Номинальное напряжение питающей сети | кВ | 10/0,4 |
| 2 | Номинальное напряжение питающей сети распределительной сети | В | 220/380 |
| 3 | Общая установленная мощность низковольтного оборудования |
кВт | 774,5 |
| 4 | Общая установленная мощность освещения | кВт | 8,5 |
| 5 | Расход электроэнергии за год | МВт х час | 1345,2 |
- обоснование, объясняющее выбор представленной схемы электроснабжения. Она может быть радиальной, магистральной или смешанной. Выбор той или иной схемы зависит от категории потребителя;
- перечень электрооборудования и расчет мощности по нему (таблица для заполнения показа ниже);
- указание категории электроснабжения, решения для штатного и аварийного режима;
- сведения о резервном и дополнительном источнике питания (если таковые предусмотрены);
- рекомендации и мероприятия, позволяющие снизить расход электрической энергии;
- тип и класс защиты электрооборудования, включая осветительную арматуру, розетки, выключатели и провода, прокладка трасс (например, в лотках, гофрированных трубах и т.д.);
- сведения об освещении аварийного и штатного режима, указания типа прокладки. Как правило, линии данных видов освещения прокладываются отдельно друг от друга, это необходимо отразить в пояснительной записке. Например, указать, что проводка осуществляется в раздельных лотках, коробах и т.д.
Документация для промышленных объектов может дополнительно включать в себя описание систем, позволяющих компенсировать реактивную мощность, автоматизации и управления, включая сведения об организации работы диспетчерской службы, а также другую информацию, согласно нормативным документам.
ГОСТы, СНИПы и другая нормативная документация, используемая для разработки раздела ЭОМ
В пояснительной записке к проекту в разделе «общие данные» необходимо указать исходные материалы (они приводились выше) и нормативные документы, на основании которых выполнялась разработка. Начнем с ГОСТов (в списке приведены номера):
- нормы заземления и сопротивления для установок стационарного типа (464-79);
- перечень общих технических условий для электрических отопительных приборов бытового назначения (16617-87);
- перечень общих технических условий для светильников (17677-82);
- статические приборы, учитывающие расход электрической энергии с классом точности 1 и 2 (30207-94), а также 02S и 05S (30206-94);
- электрооборудование помещений и зданий, перечень требований к спецоборудованию (50571.11-96);
- требования к оборудованию и электропроводке, монтаж (50571.15-97);
- стандарт для условных графических изображений на планах ЭОМ (21.614-88 и 21.210-2014).
Номера СНиПов:
- для общественных зданий (2.08.02-89);
- электротехнических устройств (3.06.05-85);
- нормы для освещения как искусственного, так и естественного (23-05-95);
- правила пожарной безопасности (21-01-97).
Помимо этого при разработке альбома проектной и строительной документации необходимо учитывать нормы, приведенные в Правилах устройства электроустановок – «библии» электрика.
Графическая часть ЭС
п) принципиальные схемы электроснабжения электроприемников от основного, дополнительного и резервного источников
электроснабжения;
р) принципиальную схему сети освещения, в том числе промышленной площадки и транспортных коммуникаций, — для объектов
производственного назначения;
с) принципиальную схему сети освещения — для объектов непроизводственного назначения;
т) принципиальную схему сети аварийного освещения;
у) схемы заземлений (занулений) и молниезащиты;
ф) план сетей электроснабжения;
х) схему размещения электрооборудования (при необходимости).
Оформлять раздел ЭС необходимо в соответствии с ГОСТ 21.1101-2013.
Расшифровка АУЕ, что значит выражение в арестантском укладе
- Ранее оно использовалось как приветствие. АУЕ с латыни переводится как «здравствуй», такое восклицание несло положительный призыв здравствовать и процветать собеседнику.
- Позже, после превращения офенского языка в «феню», при заходе в камеру и восклицании этой аббревиатуры новым сидельцем, он выражал поддержку арестантского уклада. Словосочетание расшифровывается – арестантский уклад един.
При этом, признавалась строгая организация жизни в неволе, с различными кастами и профессиями. Такой раздел позволяет определить обязанности уголовников, нарушение которых строго карается авторитетами. Сильные нарушения разбираются смотрящим, он выносит свой приговор, вплоть до смертной казни. Но честному сидельцу, исполняющему устав, бояться нечего.
Важно! Так сладко рассказывают молодежи ловцы неопытных душ. На самом деле, все намного сложней и страшней. Молодежь привлекает романтика и блатные песни
Поэтому родителям, обнаружившим в тетради ребенка эти три буквы, нельзя самоустраняться от решения этой проблемы
Молодежь привлекает романтика и блатные песни. Поэтому родителям, обнаружившим в тетради ребенка эти три буквы, нельзя самоустраняться от решения этой проблемы.
MOB
Проектная документация и рабочая документация. Стадийность проектирования
В настоящее время, в связи с вступлением в силу Положения о составе разделов проектной документации и требованиях к их содержанию, утвержденного Постановлением Правительства РФ №87 от 16.02.2008, не предусматривается стадийность проектирования, а вводятся понятия «проектная документация» и «рабочая документация».
- Основным проектным документом является проектная документация, состоящая из текстовой и графической частей. Проектная документация (за исключением некторых случаев) направляется застройщиком или заказчиком на государственную экспертизу и, при наличии положительного заключения государственной экспертизы, утверждается им. Здесь необходимо подчеркнуть, что объем проектной документации, как правило, недостаточен для строительства объекта: в ней отсутствуют необходимые спецификации и требуемая степень детализации. Проектная документация содержит только основные технические решения, позволяющие оценить их безопасность, а так же доказать техническую возможность (а в некоторых случаях — и экономическую целесообразность) реализации инвестиционного проекта.
- Для реализации в процессе строительства технических решений, заложенных в проектной документации, разрабатывается рабочая документация, состоящая из текстовых документов, рабочих чертежей и спецификаций оборудования и изделий. Поскольку единого документа, регламентирующего состав и содержание рабочей документации, не существует, при ее разработке необходимо руководствоваться соответствующими стандартами СПДС. Однако Министерство регионального развития РФ в своем письме заявляет, что «объем, состав и содержание рабочей документации должны определяться заказчиком (застройщиком) в зависимости от степени детализации решений, содержащихся в проектной документации, и указываться в задании на проектирование». На наш взгляд целесообразно требования стандартов СПДС дополнять и конкретизировать в задании на проектирование требованиями заказчика, но при этом обеспечить непротиворечивость этих требований стандартам СПДС.
Поскольку Положения о составе разделов проектной документации и требованиях к их содержанию не содержит требования о разработке рабочей документации только после разработки проектной документации, можно сделать вывод о том, что проектная документация и рабочая документация могут разрабатываться параллельно, но разработка рабочей документации не может предшествовать разработке проектной документации. Отсюда можно дать следующие пояснения относительно стадийности проектирования:
- Одностадийное проектирование осуществляется при параллельной разработке проектной документации и рабочей документации. Ранее проектный документ, разрабатываемый при одностадийном проектировании, именовался «рабочий проект» (РП) и состоял из утверждаемой части рабочего проекта и рабочей документации. Эти две составляющие рабочего проекта соответствуют принятым в настоящее время понятиям «проектная документация» и «рабочая документация» соответственно.
- Двустадийное проектирование осуществляется при последовательной разработке проектной документации и рабочей документации. Ранее проектные документы, разрабатываемые при двустадийном проектировании именовались «проект» или «ТЭО» (1 стадия) и «рабочая документация» (2 стадия). Эти два проектных документа так же соответствуют принятым в настоящее время понятиям «проектная документация» и «рабочая документация» соответственно.
- Трехстадийное проектирование (предпроектное предложение, проект, рабочая документация) — для объектов V, IV категорий сложности и для объектов III категории сложности по индивидуальным проектам, с недостаточным перечнем исходно-разрешительной документации.
ВДГО: специализированная организация по обслуживанию
Подобных компаний сейчас довольно много, ведь законом установлены весьма расплывчатые требования к специализированным организациям. Главное, чтобы они могли обеспечить заказчику комплекс мер, о которых мы упомянули ранее. Таким образом, можно составить краткое описание подобной компании.
Она должна обладать необходимым оборудованием и набором инструментов для осуществления своей деятельности, иметь профессиональные кадры и быть зарегистрированной на территории Российской Федерации. Кроме этого, организация должна создать диспетчерскую и аварийную службы, работающие круглосуточно. Жильцы многоквартирных и частных домов получают вместе с подписанными договорами и список телефонных номеров, по которым можно позвонить в критических ситуациях.
Примечательно, что несмотря на определенную законом периодичность обслуживания ВДГО, аварийные ситуации все же часто случаются. И на каждый подобный случай специализированные организации должны реагировать мгновенно. При этом не имеет значения, заключен ли договор с собственником оборудования.

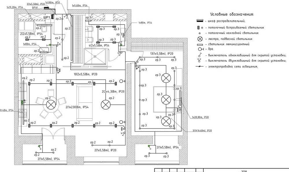
Пример документации раздела проекта ЭОМ
В качестве примера подробно рассмотрим схему освещения на рисунке 6.

Для чтения приведенной выше схемы необходимо разбираться в условных графических обозначениях, их стандарт определен нормами, прописанными в ГОСТах 21.614-88 и 21.210-2014. Как правило, на плане справа указывается, что обозначает тот или иной графический символ.
Каждая отдельная линия проводки обозначается буквенными и числовыми символами, в представленном плане это гр1, гр2 и гр3. Группы светильников записываются в формате AA(B x CC)DD, где АА – количество осветительных приборов в группе, B – число лампочек в светильнике, СС – мощность в Ваттах, DD – класс безопасности устройства.
Система электроосвещения
При проектировании электроосвещения необходимо соблюдать санитарные нормы на освещенность и расчитывать освещенность в соответствии с требованиями. Также надо учитывать, что освещение — это элемент дизайна и несет еще и эстетическую нагрузку. Проектируя световые системы, надо работать совместно с архитекторами и дизайнерами, и выполнять их требования по световому дизайну.(если эти требования не идут в противоречия с основными нормами). Это же относится и к наружному архитектурному освещению здания. Сейчас существуют компьютерные программы, которые позволяют выполнить компьютерное моделирование освещенности.
Все электромонтажные работы на объекте, как правило, выполняются субподрядной организацией. При приемке проекта в работу надо чтобы на чертежах обязательно стоял штамп генподрядчика «К производству работ» и была подпись ответственного лица. В этом случае часть ответственности за документацию ложится на ген.подрядчика. Надо также, чтобы проект был согласован с органами Энергонадзора. А наружные сети — с сетевой компанией. Проект прокладки сетей должен быть выполнен на новой, неустаревшей неоподоснове и должен быть согласован с Геотрестом.
Преимущества
ЕОМ – это очень эффективный и интересный торговый инструмент в работе с цифровыми опционами. Индикатор отличается массой преимуществ. Для каждого торгового дня он использует определенный составной показатель, который считается производным стоимости и объема за выбранный временной период. Данная величина демонстрирует свободу динамики стоимости.
Инструмент можно отнести к осцилляторам, он демонстрирует соотношение цены актива и размера контрактов, произведенных по нему. Еще он предоставляет данные про уровень объема, который необходим, чтобы переместить стоимость актива в конкретную сторону.
Установка и настройка индикатора
После установки индикатора его можно добавить на график стоимости:
- Выбираем «Вкладка» у площадки Метатрейдер.
- Указываем меню «Пользовательские», а затем «Ease of Movement».
Увеличить
Главным параметром ЕОМ индикатора считается период, который можно настроить в соответствии с вашей торговой стратегией. Чтобы избежать ложных сигналов, в настройке лучше применять 14 период.
Увеличить
Сигналы
При включении индикатора Ease of Movement на живом графике отобразится отдельная шкала под стоимостью, где в виде кривой будут демонстрироваться числовые индикаторные показатели. Инструмент ведет расчеты в виде соотношения объемов актива к разности максимума и минимума.
Чтобы устранить большинство ложных сигналов, введена дополнительная средняя скользящая с периодом 14. Индикаторные показатели могут быть отрицательными и положительными.
Увеличить
Кривые ЕОМ дают следующие сигналы:
- Когда значения Ease of Movement индикатора растут, то для изменения стоимости необходим совсем небольшой объем, а стоимость скорее всего изменится.
- Наоборот, когда индикаторная кривая падает, то будет продолжено текущее направление стоимости, так как для ее изменения потребуются значительные объемы.
- Когда кривая ЕОМ индикатора направляется параллельно нулевому мувингу, то это говорит про остановку рынка, а для изменения стоимости в какую-либо сторону необходим существенный объем.
Ease of Movement генерирует очень простые торговые сигналы. Если индикаторная кривая пересекает снизу- нулевой мувинг, то нужно приобретать КОЛЛ опцион, а когда ЕОМ индикатор сверху вниз пересекает ноль, то следует приобретать цифровые опционы ПУТ. Не нужно забывать, что все же вести торговый процесс лучше вместе с иными индикаторами, к примеру, осцилляторами или трендовыми.
Как итог
Не обязательно подробно документировать всё, или хотя бы выполнять «необходимый минимум» из этой статьи. Всегда полезно сверять часы с реальностью и понимать — что действительно нужно и поможет достичь цели.
Но важно знать, какие есть инструменты и практики и как это делают в идеальном мире. Тогда вы поймете, на чем основывать свою работу, чтобы не изобретать велосипед и не напарываться на издревле известные грабли
Даже если у вас нет ТЗ с тезаурусом и перечнем иллюстраций — структурированное и понятное хранение имеющейся документации облегчит жизнь всей команды. А также сподвигнет вас и коллег более собранно и ответственно относиться к проекту.






























